В Кстовском районе построят микрорайон на 195 домов для многодетных

Жилье в новом микрорайоне предназначено для многодетных семей.
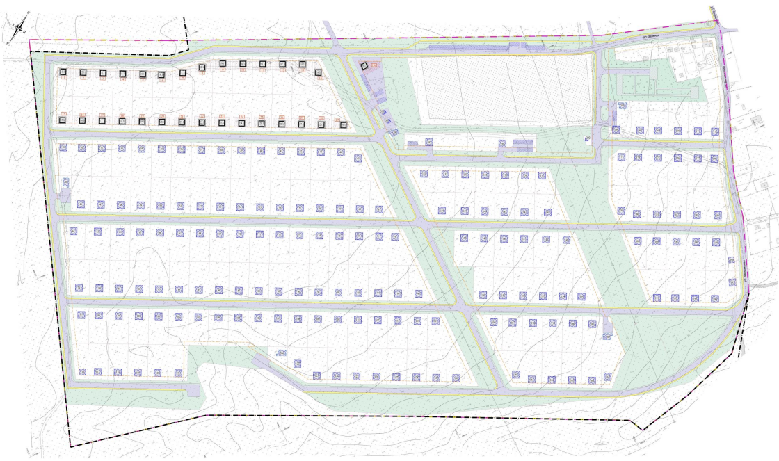
В Кстовском районе Нижегородской области к 2036 году планируется строительство нового микрорайона, состоящего из 195 частных домов. Местом расположения выбрана западная часть деревни Подлесово. Министерство градостроительства региона одобрило корректировки в проект планировки и межевания данной территории.
Под застройку выделен участок в 41,1 гектара, где возведут 195 одно- и двухэтажных домов. Поселок предназначен для многодетных семей. Ранее, в начале 2024 года, министерство уже согласовало проектную документацию. Сейчас установлены конкретные сроки реализации проекта, а также пересмотрено назначение одного из зданий вблизи кладбища — в нем разместится похоронное бюро.

В инфраструктуру микрорайона войдут два магазина и сервис бытовых услуг. Также предусмотрены строительство дорог, тротуаров и велосипедных дорожек. Планируется обустройство локальных очистных сооружений, парковок, детских и спортивных площадок, а также сквера.
Еще один жилой комплекс из 116 частных домов может появиться неподалеку от деревни Лапшлей в том же Кстовском районе. Проект планировки и межевания этой территории также утвержден региональным Министерством градостроительства.




















